From Morning Sun to Ambient Night
 |
Under the soft diffusion of natural light, the interplay between materials becomes the focal point.
The cool, architectural precision of the anodized aluminum frames provides a sharp contrast to the tactile richness of the premium oak panels.
This "Soft & Hard" balance creates an atmosphere of "Quiet Luxury" that breathes with the space.
The ultra-slim profiles and crystal-clear tempered glass maximize transparency, allowing the interior’s marble backdrop and the homeowner’s collection to be bathed in sunlight.
The design eliminates visual clutter, emphasizing a clean, airy aesthetic that complements the expansive city views.
|
|
Featuring high-CRI (Color Rendering Index) LED strips recessed within the aluminum profiles, the cabinet casts a warm, 3000K amber glow that mimics the sophisticated ambiance of a private cellar.
This curated lighting highlights the natural grain of the oak and the crystalline clarity of the glass, creating a sense of depth and visual drama.
In the soft evening light, the wine gallery becomes the heart of the home’s social area.
The subtle interplay of shadow and light against the marble backing transforms each bottle into a displayed artifact, inviting guests to linger and appreciate the art of fine living.
|

|
Macro & Texture Gallery
 |
True luxury is not just about what you see, but how it is built.
This exploded view reveals the intricate engineering and premium material composition that form the backbone of our Bespoke Aluminum-Wood Wine Gallery, ensuring it is as durable as it is beautiful.
At the heart of the system lies a modular framework of high-strength, anodized aluminum profiles.
This precision-engineered core ensures uncompromising stability, zero-corrosion, and perfect alignment for decades, providing the rigid structure needed for floor-to-ceiling installations.
|
|
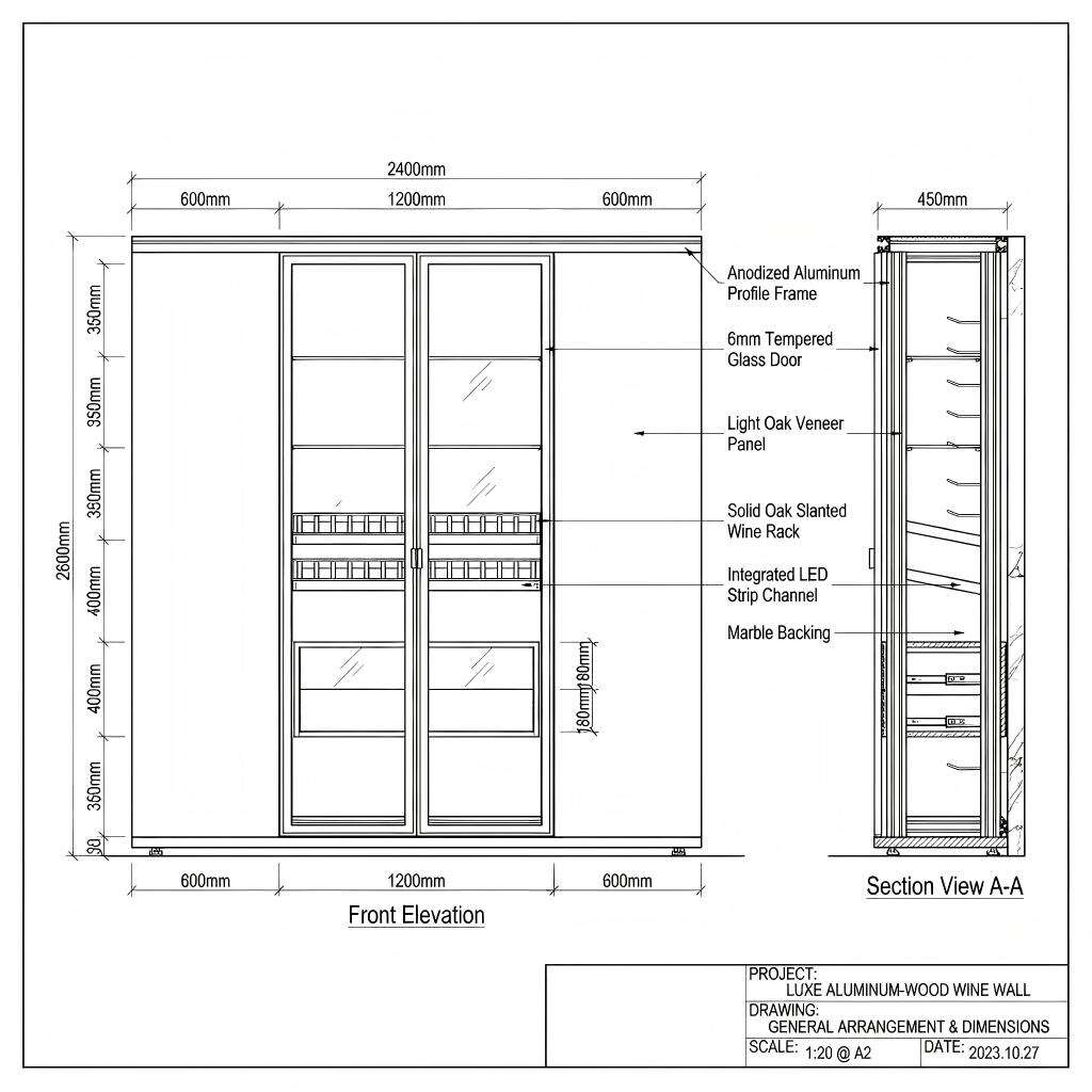
A technical elevation is more than just numbers; it is a masterplan for spatial harmony.
This detailed layout showcases the 2600mm full-height profile, optimized for the room’s specific ceiling height, and a 450mm depth that balances storage capacity with a slim, non-intrusive footprint.
Our blueprints highlight the specialized storage zones, from the Solid Oak slanted wine racks designed for optimal label visibility to the integrated LED strip channels.
Each section is meticulously proportioned to accommodate various bottle sizes while maintaining a clean, geometric rhythm.
|
 |
At the intersection of Italian-inspired design and cutting-edge manufacturing, our Bespoke Wine Gallery doesn't just follow trends—it sets a new benchmark for what a luxury interior should be.
It is a legacy piece, built for those who demand nothing less than perfection.
FROM DRAWING TO REALITY
